Appartement

Molenstraat 62 , WETTEREN € 398 000
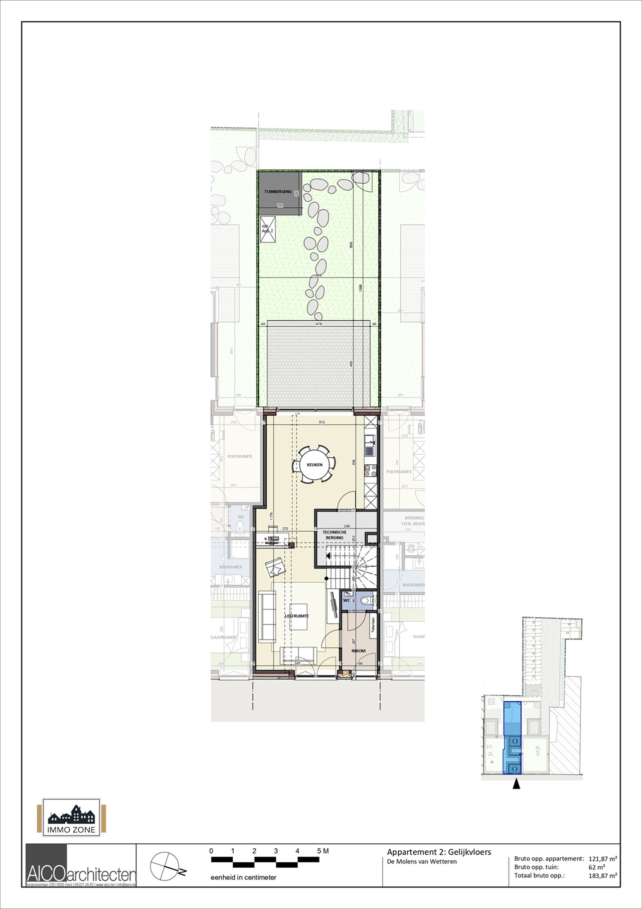
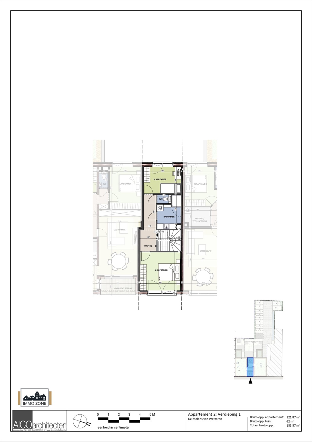
  • Bewoonbare oppervlakte 121m2
  • Slaapkamers 2
  • Badkamers 1

Appartement

Molenstraat 62 , WETTEREN € 398 000

Gelijkvloers duplex appartement met tuin in Wetteren

In het centrum van Wetteren verrijst residentie De Molens van Wetteren, een kleinschalig en kwalitatief nieuwbouwproject dat modern wooncomfort combineert met een vlotte bereikbaarheid en een aangename leefomgeving.
De ligging in Wetteren zorgt voor een perfecte balans tussen rust en bereikbaarheid. Winkels, scholen, openbaar vervoer en belangrijke invalswegen bevinden zich op korte afstand, waardoor u geniet van alle comfort van het stadsleven zonder in te boeten aan woonkwaliteit.

Het project omvat slechts 7 ruime en doordacht ingedeelde appartementen, variërend van gelijkvloerse appartementen met privatieve tuin, een duplex appartement met tuin tot comfortabele appartementen met terras of dakterras. Dankzij deze variatie is het project ideaal voor zowel eigen bewoning als investering.
Elke woonentiteit geniet van:
- Lichtrijke leefruimtes met open keuken
- 2 tot 3 slaapkamers (afhankelijk van het type)
- Een privatieve buitenruimte (tuin, terras of dakterras)
- Moderne badkamers en aparte toiletten
- Hoogwaardige en duurzame afwerking
Daarnaast beschikt de residentie over parkeerplekken op eigen terrein en een gemeenschappelijke fietsenberging.

De Molens van Wetteren staat garant voor tijdloos wonen, energiezuinigheid en een aangename leefomgeving – een toekomstgerichte keuze voor wie op zoek is naar kwaliteit en duurzaamheid.

Alle prijzen zijn telkens exclusief aankoopkosten en BTW.

Voor meer informatie, contacteer Quinten van Immo Zone op 0485/02.48.04 of per mail op quinten@immo-zone.be

Interesse?

Quinten Van Hauwermeiren BIV: 517.265 0485 02 48 04

Algemeen

  • Referentie 3627702
  • Bouwjaar 2027
  • Bewoonbare oppervlakte 121m2
  • Oppervlakte grond 183m2
  • Oppervlakte terras 19m2
  • EPC A

Comfort

  • Slaapkamers 2
  • Tuin Ja
  • Terras Ja
  • Garage Nee

Technisch

  • Voorkooprecht Nee
  • Dagvaarding Geen rechterlijke herstelmaatregel of bestuurlijke maatregel opgelegd
  • Verkavelingvergunning Nee
  • Bouwvergunning Ja
  • G-score Klasse C
  • P-score Klasse C

Documenten

Documenten bekijken? Registreer je hier.

Meer informatie gewenst? Contacteer ons

Immo Zone BV

  • Keizersplein 71 9300 Aalst
    Ondernemingsnummer: 0451.433.050

Volg Immo-Zone

IMMO ZONE BV is een professionele vennootschap onderworpen aan de deontologische code van het BIV. Erkend Vastgoedmakelaar met BIV nr. 511 931 | BE 0451.433.050
Land van toekenning is België. Adres BIV: Luxemburgstraat, 16B, 1000 BRUSSEL. KB van 27 september 2006
BA en borgstelling via NV AXA Belgium polisnr. 730.390.160

Toezichthoudende autoriteit: Beroepsinstituut van Vastgoedmakelaars, Luxemburgstraat 16 B te 1000 Brussel, 02 505 38 50, info@biv.be