Burelen

Libbrechtstraat 11 , WETTEREN € 920/mnd
  • Bewoonbare oppervlakte 82m2
  • Badkamers 1

Burelen

Libbrechtstraat 11 , WETTEREN € 920/mnd

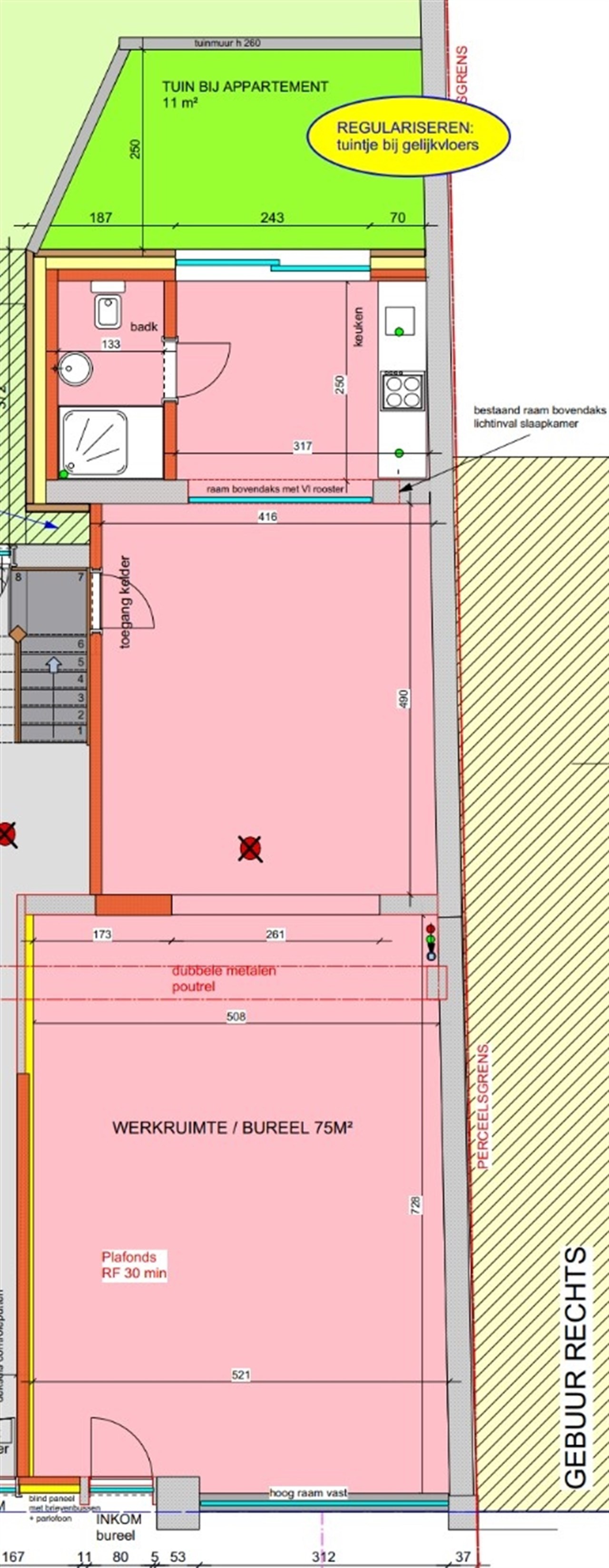
Gelijkvloerse kantoorruimte met kelder en terras.

Kantoorruimte met uitstekende ligging in Wetteren centrum.
Op 200 meter van Markt Wetteren.
Kan afgesloten worden in 2 delen.
Toilet met lavabo en douche.
Gezellig terras.

CV met aardgas.
EPC label C (komt overeen met label B voor een woning).
+ €80,00/maand gemeenschappelijke kosten (met inbegrip van voorschot aardgas en onderhoud CV-ketel).
Dit kantoor is beschikbaar vanaf heden.

Interesse?

Laurianne Bauwens 09 231 75 92

Algemeen

  • Referentie 3627970
  • Bouwjaar 0
  • Bewoonbare oppervlakte 82m2
  • EPC C
  • UC 20251121-0003736493-KNR-1

Comfort

  • Slaapkamers 0
  • Tuin Nee
  • Terras Ja
  • Garage Nee

Technisch

  • Voorkooprecht Nog niet aangevraagd
  • Dagvaarding Nog niet aangevraagd
  • Verkavelingvergunning Nog niet aangevraagd
  • Bouwvergunning Nog niet aangevraagd

Documenten

Documenten bekijken? Registreer je hier.

Meer informatie gewenst? Contacteer ons

Immo Zone BV

  • Keizersplein 71 9300 Aalst
    Ondernemingsnummer: 0451.433.050

Volg Immo-Zone

IMMO ZONE BV is een professionele vennootschap onderworpen aan de deontologische code van het BIV. Erkend Vastgoedmakelaar met BIV nr. 511 931 | BE 0451.433.050
Land van toekenning is België. Adres BIV: Luxemburgstraat, 16B, 1000 BRUSSEL. KB van 27 september 2006
BA en borgstelling via NV AXA Belgium polisnr. 730.390.160

Toezichthoudende autoriteit: Beroepsinstituut van Vastgoedmakelaars, Luxemburgstraat 16 B te 1000 Brussel