Huis

Fortstraat 11 , WETTEREN € 412 500
  • Bewoonbare oppervlakte 148m2
  • Slaapkamers 3
  • Badkamers 1

Huis

Fortstraat 11 , WETTEREN € 412 500

Gesloten nieuwbouwwoning met 3 slaapkamers en mooie tuin.

Welkom in het prachtige nieuwbouwproject ‘FORTSTRAAT 11’. Met de ligging vlakbij het station van Wetteren is de Fortstraat een fantastische woonlocatie die gemak en een aangename omgeving combineert. Met goede verbindingen naar openbaar vervoer en hoofdwegen biedt de Fortstraat een perfecte balans tussen stedelijk leven en wonen in het groen.
Naast de villa verrijken twee nieuwbouwwoningen de voorzijde het project:
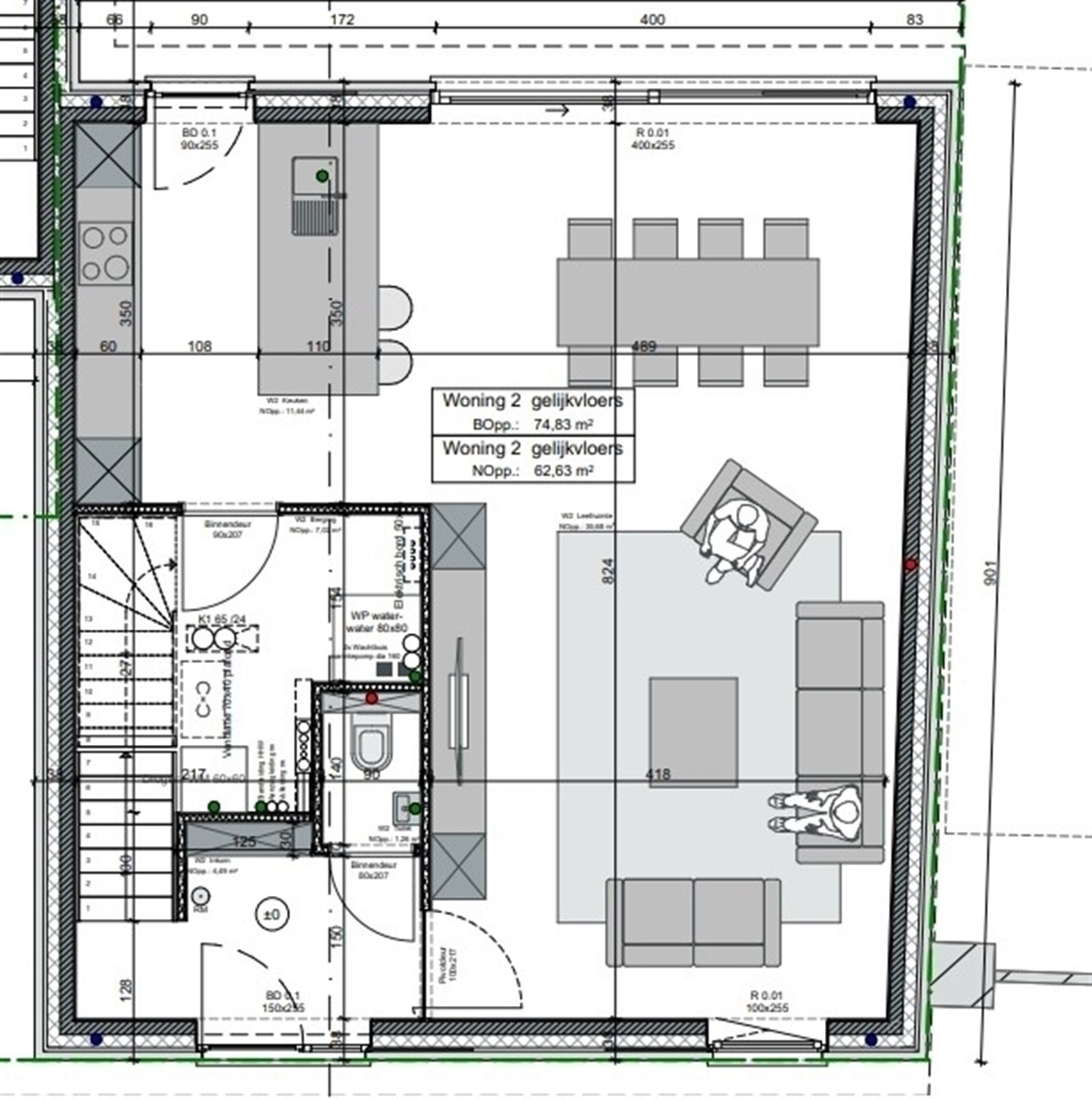
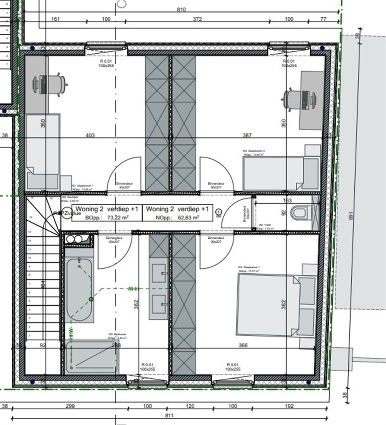
Deze gesloten bebouwing heeft volgende indeling: inkomhal, toilet en ingebouwde vestiaire. Verder lopend kom je in een prachtige openruimte waar beleving centraal staat. De leefruimte en keuken gaan hand en hand samen en vormen het hart van de woning met een overvloed aan natuurlijk licht en zicht naar de privatieve tuin. Naast de keuken is een aparte bergruimte aanwezig. Bovenliggend zijn er 3 aangename slaapkamers aanwezig, een apart toilet en badkamer met inloopdouche, ligbad en dubbele lavabo. Een achterliggend terras en privatieve tuin met veel karakter maken deze woning helemaal af. Verder is er ook nog een privé-parking aanwezig.
Technische aspecten:
EPC A – E-peil 20
Ventilatiesysteem D
Vloerverwarming op basis van geothermie/warmtepomp.
Domotica-systeem met conforme elektriciteit.
De woning wordt schilderklaar afgeleverd, en eigen keuzes zijn in deze fase nog mogelijk.
Alle vermelde prijzen zijn steeds exclusief BTW, aankoopkosten en aansluitingskosten.
Voor meer informatie omtrent dit project, aarzel zeker niet om Quinten van Immo Zone te contacteren via 0485/02.48.04 of per mail op quinten@immo-zone.be.

Interesse?

Quinten Van Hauwermeiren BIV: 517.265 0485 02 48 04

Algemeen

  • Referentie 3627550
  • Bouwjaar 2026
  • Bewoonbare oppervlakte 148m2
  • Bebouwde oppervlakte 84m2
  • Oppervlakte grond 218m2
  • Oppervlakte terras 32m2
  • EPC A

Comfort

  • Slaapkamers 3
  • Tuin Ja
  • Terras Ja
  • Garage Nee

Technisch

  • Voorkooprecht Nee
  • Dagvaarding Geen rechterlijke herstelmaatregel of bestuurlijke maatregel opgelegd
  • Verkavelingvergunning Nee
  • Bouwvergunning Ja
  • G-score Klasse A
  • P-score Klasse A

Documenten

Documenten bekijken? Registreer je hier.

Meer informatie gewenst? Contacteer ons

Immo Zone BV

  • Keizersplein 71 9300 Aalst
    Ondernemingsnummer: 0451.433.050

Volg Immo-Zone

IMMO ZONE BV is een professionele vennootschap onderworpen aan de deontologische code van het BIV. Erkend Vastgoedmakelaar met BIV nr. 511 931 | BE 0451.433.050
Land van toekenning is België. Adres BIV: Luxemburgstraat, 16B, 1000 BRUSSEL. KB van 27 september 2006
BA en borgstelling via NV AXA Belgium polisnr. 730.390.160

Toezichthoudende autoriteit: Beroepsinstituut van Vastgoedmakelaars, Luxemburgstraat 16 B te 1000 Brussel, 02 505 38 50, info@biv.be